Weboldal címe
Weboldal alcíme

Eladó ház Veszprém Csatárhegyen

A Monolit Ingatlaniroda Veszprém eladásra kínálja a: Veszprém-Csatárhegyen 2 szobás ház nagy telekkel eladó!


- tehermentes
- azonnal birtokba vehető
- remek fekvés: a nap körbejárja a házat/telket
- tégla-kő ház, szerkezetileg jó
- állapota: közepes
- fűtés: kályha, cserépkályha
- közművek: villany van, víz ciszternában, vezetékes gáz, víz és csatorna nincs
- rengeteg gyümölcsfa, konyhakert és gondozott udvar várja az új tulajdonost
- megközelítése föld, ill. murvás úton!
- FIGYELEM! mivel az ingatlan zártkerti besorolású, így a bankok nem adnak rá hitelt


Kitűnő választás, ha szeretne kiszabadulni a városi nyüzsgésből a csendbe!
Nyaralónak, hétvégi háznak, turisztikai célra kiváló.
Ekkora méretű ház Csatáron ritkaságnak számít!

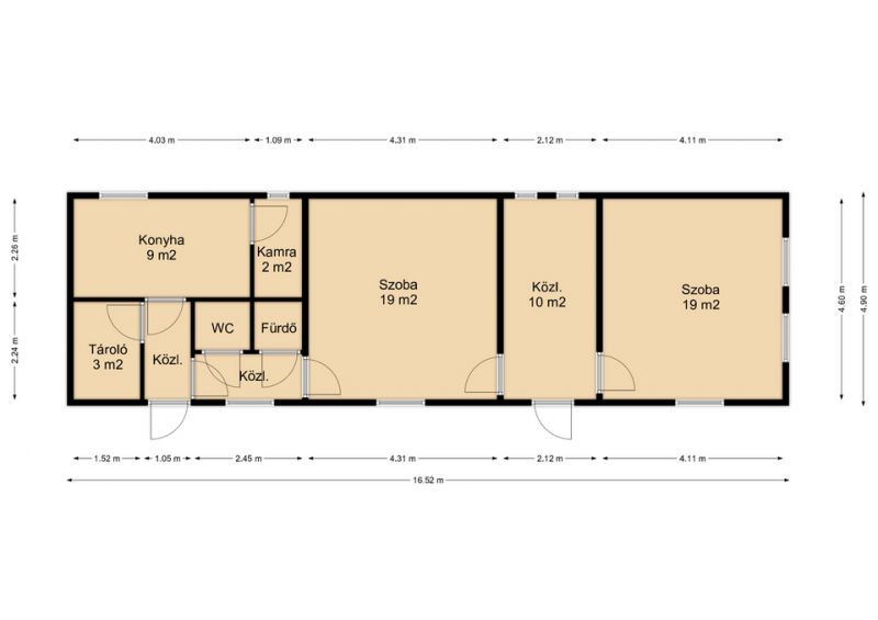
Átalakítási lehetőség: méreténél és szerkezeténél fogva a ház akár 2 külön lakrészre is bontható, így akár turisztikai célra vendégháznak, apartman háznak is tökéletes lehet.

Méretek:
- ház 67 m2
- telek 1.480 m2

Ár: 26.000.000 Ft


Ingatlant adna el? Megbízható veszprémi ingatlanirodát keres? Kattintson ide! https://monolitingatlan.hu/ingatlanforgalmazas

Kérdésével forduljon hozzám bizalommal: Erdélyi Miklós veszprémi ingatlanközvetítő Tel: 30-620-2927


Mivel foglalkozunk, miben tudunk segítséget nyújtani?
Megbízható veszprémi ingatlanirodát keres? Tapasztalt ingatlanközvetítőre van szüksége, aki nem csupán egy átlagos "ingatlanos"?
Eladó lakása, családi háza van, amit szeretne gyorsan, kényelmesen, alacsony költségekkel értékesíteni? Nincs tisztában az adó, illeték jogszabályokkal, az ingatlan adás-vétel menetével? Mindenben segítünk!

Tevékenységünk: ingatlanközvetítés Veszprémben, ingatlanforgalmazás Veszprém vonzáskörzetében, ingatlan bérbeadás, értékbecslés, energetikai tanusítvány készítése, jogi tanácsadás, földhivatali ügyintézés, ingatlan birtokba adása, műszaki ellenőrzés, komplett építőipari lebonyolítás, saját ingatlan beruházás.

Folyamatosan keresünk valós ügyfeleink részére: eladó lakást Veszprémben (tégla lakás, panel lakás), eladó családi házat Veszprém és vonzáskörzetében (új építésű és használt, felújítandó családi házat), eladó telket, vállalkozási jellegű ingatlanokat (üzlet, iroda, csarnok).